Parade Of Homes
Laredo 2025
Awarding The Best
Homes Of Laredo

Parade Of Homes
Laredo 2025
Awarding The Best Homes Of Laredo
What is Parade Of Homes Laredo?
The Parade of Homes Laredo is an annual showcase organized by the Laredo Builders Association, where the city’s top homebuilders open the doors of their newest creations to the public. This three-day event celebrates craftsmanship, innovation, and design, giving visitors the opportunity to tour beautifully built model homes across Laredo’s newest communities.
What are judges looking for:
- Design & Floor Plan / Layout
- Quality & Craftsmanship
- Interior Design & Styling
- Architectural Design
- Exterior & Curb Appeal
- Innovation & Creativity
- Outdoor Living
- Overall Impact - “Wow” Factor

Parade Of Homes 2025 Information
Friday Oct. 24th | 3pm to 7pm
Saturday Oct. 25th | 10am to 7pm
Sunday Oct. 26th | 12pm to 7pm
This Year We Are Participating With Two Homes
Step into luxury with this stunning contemporary home, thoughtfully designed to deliver elegance and comfort in every detail. Featuring 1,489 sq. ft. of beautifully crafted living space, this 3-bedroom, 2-bathroom, and 2-car garage residence perfectly blends modern design with high-end finishes, creating an ideal retreat for families and those who love to entertain.
1501 Noyola Loop
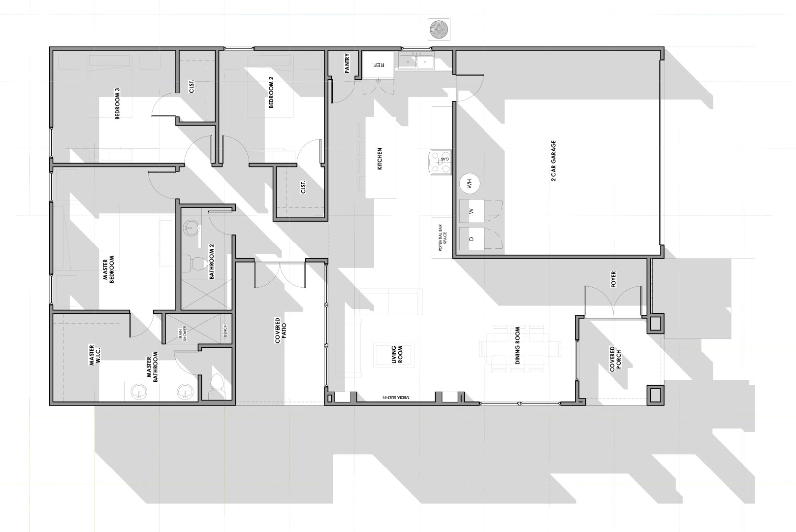
Welcome to 1501 Noyola Loop, a breathtaking example of contemporary architecture that masterfully combines modern elegance with everyday functionality. This impressive residence features 2,099 sq. ft. of beautifully curated living space, offering 3 spacious bedrooms, 2 luxurious bathrooms, all designed to impress.
Questions About POH Laredo 2025?
[NEXForms id=”13″ ]